Adroit Group
You are here: Home / Our Brands /Tyros /TYROS Prestress Systems
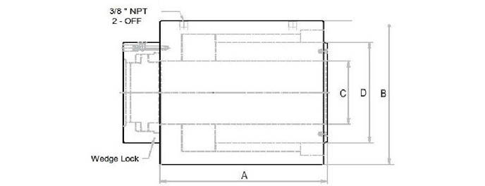
MULTI STRAND JACKS WITH WEDGE LOCK - SHORT PROFILE
CAPACITY 100-1500 TON/STROKE 200MM/WORKING PRESSURE 600 BAR
- Pre-stressing & post tensioning of strands in concrete structure
- Relief valve in return line for safety
- Suitable calibrated power pack units & accessories available
| Model |
Capacity |
Capacity |
Stroke |
Maximum No. of Strands |
Effective Area |
Oil Cap. |
A Closed height |
B Cylinder OD |
C C'hole dia. |
D Ram dia. |
Wt. (Approx) |
|
(ton) |
(kN) |
(mm) |
0.5" Size |
0.6" Size |
(cm2) |
(cc) |
(mm) |
(mm) |
(mm) |
(mm) |
(kg.) |
| AMSJ 1020 |
100 |
1181 |
200 |
7 |
5 |
196.9 |
3939 |
405 |
240 |
90 |
155 |
110 |
| AMSJ 2020 |
200 |
2200 |
200 |
12 |
7 |
366.8 |
7340 |
395 |
330 |
145 |
230 |
185 |
| AMSJ 3020 |
300 |
3561 |
200 |
19 |
12 |
593.5 |
11870 |
455 |
400 |
175 |
280 |
305 |
| AMSJ 4820 |
480 |
4675 |
200 |
31 |
19 |
779.1 |
15582 |
530 |
470 |
195 |
315 |
525 |
| AMSJ 6820 |
680 |
7521 |
200 |
42 |
27 |
1253.5 |
25070 |
570 |
580 |
240 |
360 |
845 |
| AMSJ 10520 |
1050 |
10576 |
200 |
61 |
42 |
1762.6 |
35253 |
615 |
750 |
305 |
480 |
1670 |
| AMSJ 15020 |
1500 |
15781 |
200 |
- |
55 |
2630.1 |
52603 |
700 |
960 |
340 |
585 |
3300 |
- 1. Specification are subject to change due to continual improvement
- 2. Capacity & stroke specified are maximum safe limits. As safe practice,use at 80% of rating
- 3. Higher capacity & customized solutions on request.
Scroll to top
Scroll to top